方案展示
設計說明
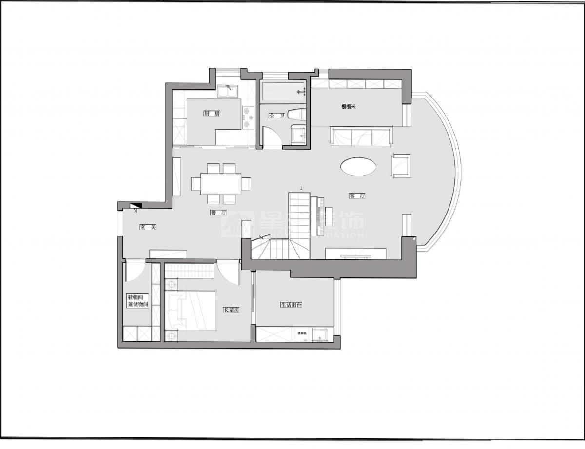
項目工程:嘉怡苑 設計風格:現代簡約 面積:330方 設計:丁捷 施工圖:李康清 效果圖:唐韶君 攝影師:沈佳宏 特別鳴謝:張磊 林婷婷 鄧琴 林朝杰 蔡志登 設計師寄語: 讓生活回歸本真。本真,意為本源,真相也有純潔真誠之意。當下,燈紅酒綠的繁華世界里,或熙熙為名來,或攘攘為利去,眾人只低頭為生存而生活,約翰·列儂曾說:“當我們正在為生活疲于奔命時,生活已離我們而去。”人們開始想回歸本真,追求合理適當的運動。 露臺上,午后悠閑的下午茶,瑜伽、旅行等放松身體,來一場心靈上的凈化。其實回家,在家,一磚一瓦便能尋回本真。
[展開]
關注我們
分享到
微信

立即預約
在線咨詢
在線客服
公安部備案號 44010602004978號